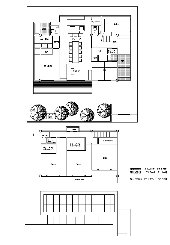
名  称 :大財の家  
竣  工 :2019年11月28日
建設会社 :福田建設株式会社
場  所 :佐賀市大財
構  造 :木造2階建て
床面積  :201.17m2